SCH-GXHG过电压抑制柜
适用范围
该装置适用于发电、变电和用电企业的3~35kV中性点非有效接地的电力系统,用于以电缆线路为主的电网、电缆线路与架空电网的混合线路,并可替代电压互感器柜、专用避雷器柜。
产品特点
本装置可根据用户系统需求,提供全面的过电压保护方案;
可有效地消除系统过电压保护死区;
具有超强的能容,能有效的抑制系统过电压并吸收系统过电压发生时产生的大量能量;
具有PT断线、接地等报警功能,性价比高;
具有常规PT柜的所有功能,可直接取代PT柜;
采用瞬间悬空并复位技术,在系统单相接地故障消除后,可以有效的抑制通过PT的对地电容冲击。电流,保护PT和高压熔断器不被烧毁;
具有拓展功能,可选配小电流选线、消谐、PT切换等功能,投运、维护简单、方便。
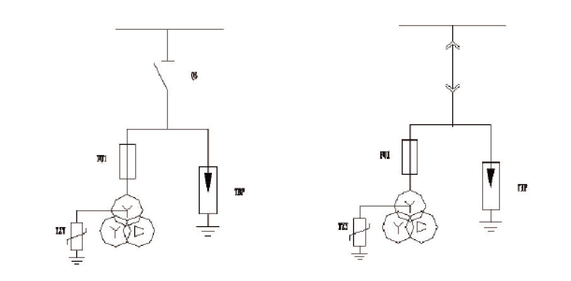
电气原理图

产品中心
Product Center
邮箱:sjzscdl@163.com
销售部:13171589787/售后部:15075085234
网址:www.sjzsch.cn/投诉热线:13230495155
地址:石家庄高新区天山南大街695号联东U谷产业 园G-5#-E1
全国服务热线
0311-66630350
公众号二维码
Copyright © 石家庄硕诚电力科技有限公司 All rights reserved 备案号:冀ICP备2025106445号-1
主要从事于高低压开关柜配套设备、变压器双级高效真空滤油机、变压器智能冷却控制柜, 欢迎来电咨询!